|
|
This Month's Issue: Light Industrial |
Projected Future Industrial Growth
A key component of non-residential growth in St. Albert is the light industrial sector. In future years, St. Albert is poised to experience record levels of industrial building development, as new neighbourhoods come online and the Employment Lands are parcelled. To effectively prepare for upcoming growth, the Economic Development Division at the City of St. Albert has projected the expected increase in industrial building space to the year 2020. Currently, St. Albert has around 3.4 million square feet of industrial building space. By 2020, it is expected that the industrial square footage will be close to 5.7 million square feet. That is an annual increase of about 460,000 square feet a year, or 13.5% growth annually over five years. The primary sources of this expected increase in industrial building space are the South Riel Anthony Henday Business Park (developed by GWL Realty Advisors) and the new Alberta Gaming and Liquor Commission distribution warehouse in Campbell Business Park.
It is interesting to note that this projection for 2020 does not include a significant contribution from the Employment Lands. The Employment Lands are 618 acres of land west of Ray Gibbon Drive which have been earmarked for non-residential development in St. Albert. As the Employment Lands become developed over the next 10 to 15 years, St. Albert's business landscape will experience even more significant growth, in addition to the growth which will be provided from other neighbourhood developments (such as Campbell Park and South Riel). This is exciting news for all Capital Region businesses, especially local businesses in St. Albert. Opportunities to expand a local business or attract a regional Capital Region business to the new non-residential developments in St. Albert will be plentiful in the coming years, and all new industrial lands are located next to major roadways such as Ray Gibbon Drive or the Anthony Henday Drive. Any business owners interested in future expansion should keep a close watch on the new industrial lands becoming available in St. Albert over the next few years, or contact Economic Development for more information.
|
|
|
|
|
|
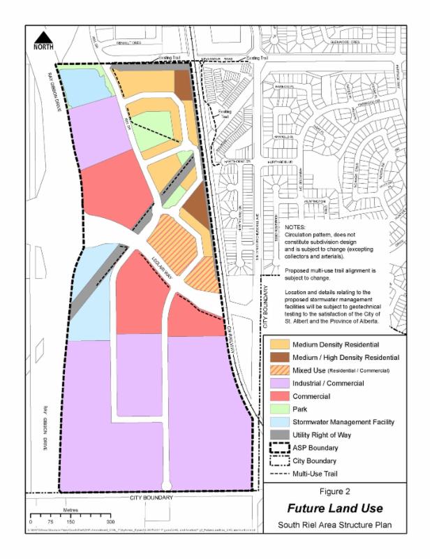
South Riel - St. Albert's Upcoming Business Boom
 A key portion of St Albert's future industrial land growth resides in the swath of land bordered by Levasseur Road to the North, Ray Gibbon Drive to the West, the CN railway to the East, and the Anthony Henday Drive to the South; with 52.34 hectares worth of commercial and industrial development space, South Riel is poised to be a major player in St Albert's future business landscape.
The Northern Section of South Riel (North of Leclair Way, South of Levasseur Road) will encompass medium/high-density residential developments and mixed-useresidential/commercial developments. Planned developments in this section include a residential community by Averton, to the East of the Enjoy Centre across Riel Dr. The Bellevue Village mixed residential/commercial development by Cape Construction will be situated immediately South of the Enjoy Centre. The combination of industrial/commercial and medium/high-density residential developments will give South Riel a diverse development composition that will provide business owners, employees and residents the opportunity to live, work and shop all within close walking proximity. The Southern portion of South Riel (South of Leclair Way) will include a small set of commercial development space next to Leclair Way, with the rest of the land set aside for light industrial/commercial developments. High design standards and guidelines have been imposed for this area of South Riel to help it stand out as an aesthetically pleasing business park. GWL Realty Advisors are managing this section of South Riel's development; known locally for their "51st Street Business Centre" development in South Edmonton, the company has managed dozens of residential, commercial, and industrial development projects across Canada. Plans for the building structures in this area of South Riel include slanted roofs and glass window exteriors that will adhere to the strict design standards. South Riel will offer businesses a significant benefit with its close proximity and easy access to major transportation networks. Located next door to the Anthony Henday Drive, South Riel will provide prime access to a ring-road that can conveniently bring products, services and employees to every corner of the Capital Region. Arguably, the biggest transportation related benefit will be the easy access to Ray Gibbon Drive, which will eventually replace St Albert Trail as Highway 2 - otherwise known as Edmonton's gateway to the North. Prime access to these transportation networks will be especially attractive for fleet/transportation-based industries.
|
Future Industrial Land Study Highlights
The City of St. Albert recently updated the 2011 Future Industrial Land Requirements Study, contracting out the project to Watson & Associates Economists Ltd, inassociation with MDB Insight. The goal of the study was to provide a market assessment that could be used when considering development of the 618 acres of industrial expansion land (dubbed "the Employment Lands") in the western portion of St. Albert. This section of land immediately west of Ray Gibbon Drive and north of Big Lake will be a major source of light industrial growth in St. Albert in the coming years, adding to the new supply being made available in Campbell Business Park and South Riel. The City of St. Albert Industrial Expansion Market Assessment study looks at macro-economic trends for Alberta and the Capital Region, key economic drivers for industrial development, and also performs a gap analysis to identify sector opportunities in the region. It also reviews the development outlook for future industrial lands within St. Albert, and analyzes market trends to come up with a few potential land layouts for the new light industrial areas in St. Albert. The economic portion of the report focuses on the main driving forces of the Alberta economy, including the oil and gas sector. Although oil prices are in a major slump, the long term outlook for the energy sector in Alberta is still favorable. It can be expected that the surrounding undeveloped lands in the Capital Region will still experience positive development growth in the medium to long term, in both the residential and non-residential sectors. Regional economic growth drivers include long term energy sector growth, labour market growth, infrastructure projects, and continued economic diversification. The sector gap analysis highlights a few key areas that present emerging opportunities for business growth, such as oil and gas servicing, engineering, management consulting, and computer systems designs. There is an expectation that based on the historical character of St. Albert's industrial sectors, the higher-value, higher-margin subsectors of manufacturing will also present opportunities for business attraction in these new industrial lands. The report presents a number of key observations. Among them, it notes the City of St. Albert is a relatively cost-competitive community in the Capital Region when considering non-residential tax rates, land prices, and off-site levies. An area of improvement to increase St. Albert's competitiveness is industrial development costs. The City of St. Albert will leverage the results of this study in the coming years to ensure the Employment Lands are development in a efficient, market specific manner.
Read the 2011 Industrial Land Requirements Study
|
|
BUSINESS SPOTLIGHT ON...Libra Transport (BC) Ltd.
Francis Kohlman always stressed that service and honesty were the most important things. Ollie Kohlman extolled the benefits of staying positive throughout challenges, accidents, and economic downturns. Although now semi-retired, the founding couple's lessons have trickled down to their grandchildren who currently run the family-owned transportation company in St. Albert.
Chris Frehlich is the General Manager of Libra Transport (B.C.) Ltd. and has been working there since he was in university over 20 years ago. Libra serves Western Canada; particularly high-volume shippers of commodities such as lumber, steel, and other building products. He credits the advantageous position that Libra has being in Riel Business Park since it is easy for his trucks to get on the Anthony Henday Highway and it is close to Edmonton's Western Industrial area.
Karen Schneider, Office Manager, has been with the company for over 30 years and is also a descendant of the founders. She helps elaborate on the details of the early years of Libra Transport. After initially starting the company in Edmonton in 1976, Francis and Ollie moved to St. Albert in 1978 and took their home-based business with them. During this time, the Transportation industry was heavily regulated and companies had to be approved (and physically located in an area) in order to have authority to do business in that region. Libra Transport started a company in British Columbia as well since a significant number of clients were based there, and it would reduce their costs of doing business. However, deregulation occurred in the 80s and soon there was lots of competition from all regions. It was during these lean times that the companies' strong values and conservative financial style helped get them through. The decision to also use the B.C. based company as the operations unit "It was unheard of to turn a job away back then, but there were times when a client wanted a delivery and we knew that we couldn't reasonably do it in that time so we were honest and explained that. In the end, I think they really appreciated that honesty and it served us better in the long run to have that kind of relationship". Libra Transport's integrity also manifests itself in the way that they select truck drivers. "Most of our drivers are owner-operators. They need to have equipment that is up-to-date including anti-idling measures, and reduced emissions technology", Chris tells me. "If we're going to be reliable in our service, then our operators need to have reliable equipment". New technology on the horizon may reshape the industry. Electronic logging devices (ELDs) are replacing the archaic paper ones and allowing for more transparency and an elimination of falsified records. "Officials in the US are voting on establishing an ELD Mandate at the end of November. If that happens, then Canada won't be too far behind in enforcing compliance as well." Chris explains. Chris and Karen are really keen on Libra Transport's place in St. Albert. They both agree that they love the "small town feel" and the sense of "enthusiasm and positivity" that residents in the community possess.
Libra Transport (B.C.) Ltd.
#2 Renault Crescent
St Albert, AB T8N 5B3
(780) 458-3011
The Spotlight on Business is a monthly feature wherein we highlight a local business and learn more about what they do and how they positively contribute to the identity and economy of St. Albert. If you, or someone you know, would like to be featured in a future issue, please contact hpacheco@stalbert.ca with a brief description of the organization.
Back to top
|
|
New Businesses in St. Albert
Commercial/Industrial Businesses
1879976 Alberta Ltd. 780-458-3198 ext.223
106 - 25 Chisholm Ave
Retail Vehicle Sales & Service
CHInstitute Inc. 780-239-8025
50 - 161 Liberton Dr
Holistic Health Services
Covenant Care - Foyer Lacombe 780-735-7153
1 St Vital Ave
Long Term Care & Hospice Care
Everyday People Financial 780-905-4444
106 - 25 Chisholm Ave
Vehicle Leasing & Finance Company
The Healing Center Inc. 780-569-1633
50 - 161 Liberton Dr
Wellness Center Specializing in Therapeutic Yoga, Nutrition & Energy Healing
Hypnoworks 780-569-1633
50 - 161 Liberton Dr
Hypnosis & Energy Work Clinic Specializing in E.F.T.
Jalonen Law Office 780-232-8653
215 - 200 Carnegie Dr
Family Law Office
Pathways of the World 780-569-0232
50 - 161 Liberton Dr
Holistic Health Retreats & Unique Travel Experiences Tour Operator
RBC 587-340-7083
1055 St Albert Tr
Financial Institution
Realtors Community Foundation 780-953-1987
122 - 15 Erin Ridge Rd
Sale of Christmas Products
Saint City Vapes Inc. 780-233-8273
102 - 50 St Thomas St
E-Cigs, Juice & Vapes
St Albert Community Midwives 780-902-4555
2506 Tudor Glen Market
Midwifery Clinic
XIX Nineteen St. Albert 780-569-1819
104 - 150 Bellerose Dr
Restaurant & Lounge
Home-Based Businesses
Alair Homes Central 780-619-9958
Home Builder / Renovator
Barbara May Productions 780-460-9774
Speaking, Training, Coaching, Teambuilding Seminars
Cap City Contracting 780-991-4552
Construction / Renovation
Daryl Rolheiser - Dyna Developments 780-802-5675
Electrical Contractor
General Canadian Industrial Corp. 780-257-6225
General Contracting, Construction
Green-Lumination Ltd. 780-996-0213
LED Lighting Business
Fair Oaks AirBnB 780-907-3762
Bed & Breakfast Hosting Travelers to St Albert
JRM Construction & General Hauling 780-720-4108
Snow Clearing
Kathy's Creations 780-965-7919
Baby & Children Items, Digital Prints
KH Construction 780-905-2251
Gas-fitting, Heating, Furnaces, Garage Heaters
Kodiak Wildlife Products Inc. 1-866-356-3425
Environmental Consulting Services; Distribution & Sale of Wildlife Safety Products
Lean Essence Nutrition 780-991-0613
Personalized Nutrition & Lifestyle Coaching
Podlo Corporation 780-952-6992
Skid Steer Services, Landscaping
Pramana Therapies 780-720-0064
Mobile Massage Therapy
Russ T Recycling 780-604-2546
Recycling & Retail Decommission
Smartech Cleaning and Painting 780-902-0841
Cleaning Carpet, Upholstery, House Cleaning, Small Drywall Repair, Painting
Tech4Hire 780-700-5561
Computer Consulting Services
Tempfairy Dental Solutions 780-239-0976
Agency that Finds & Retains Temporary Work for the Dental Community
Thermal Comfort Heating & Cooling Inc. 647-999-0487
HVAC Business
TLC Health - Fitness 780-458-6969
Personal Fitness Training
West Coast Mechanical Corp 780-940-6850
Plumbing, Gas-fitting, Heating, A/C, Drain Cleaning, Renovations, New Construction
|
|
Monthly Growth Stats
Single Family Housing Starts

Single Family Dwelling Resales
 Building Permits Issued
|
|
Forwarded from a friend? Subscribe here
City of St. Albert | info@stalbert.ca 29 Sir Winston Churchill Avenue | St. Albert, AB | T8N 0G3 |
|
|
|
|
Copyright © 2015. All Rights Reserved.
|
|
|
|